ABOUT
キッチン、洗面、ユニットバス・トイレリフォーム済み。
その他一部リフォーム済みです。
駐車2台可能です。
フレスタ草戸店まで徒歩約4分です。
その他一部リフォーム済みです。
駐車2台可能です。
フレスタ草戸店まで徒歩約4分です。
2025年11月に当社にて一部リフォーム済みです。
気になる水回りは全てリフォーム済みです。
気持ちよく調理や浴室に入ることができます。
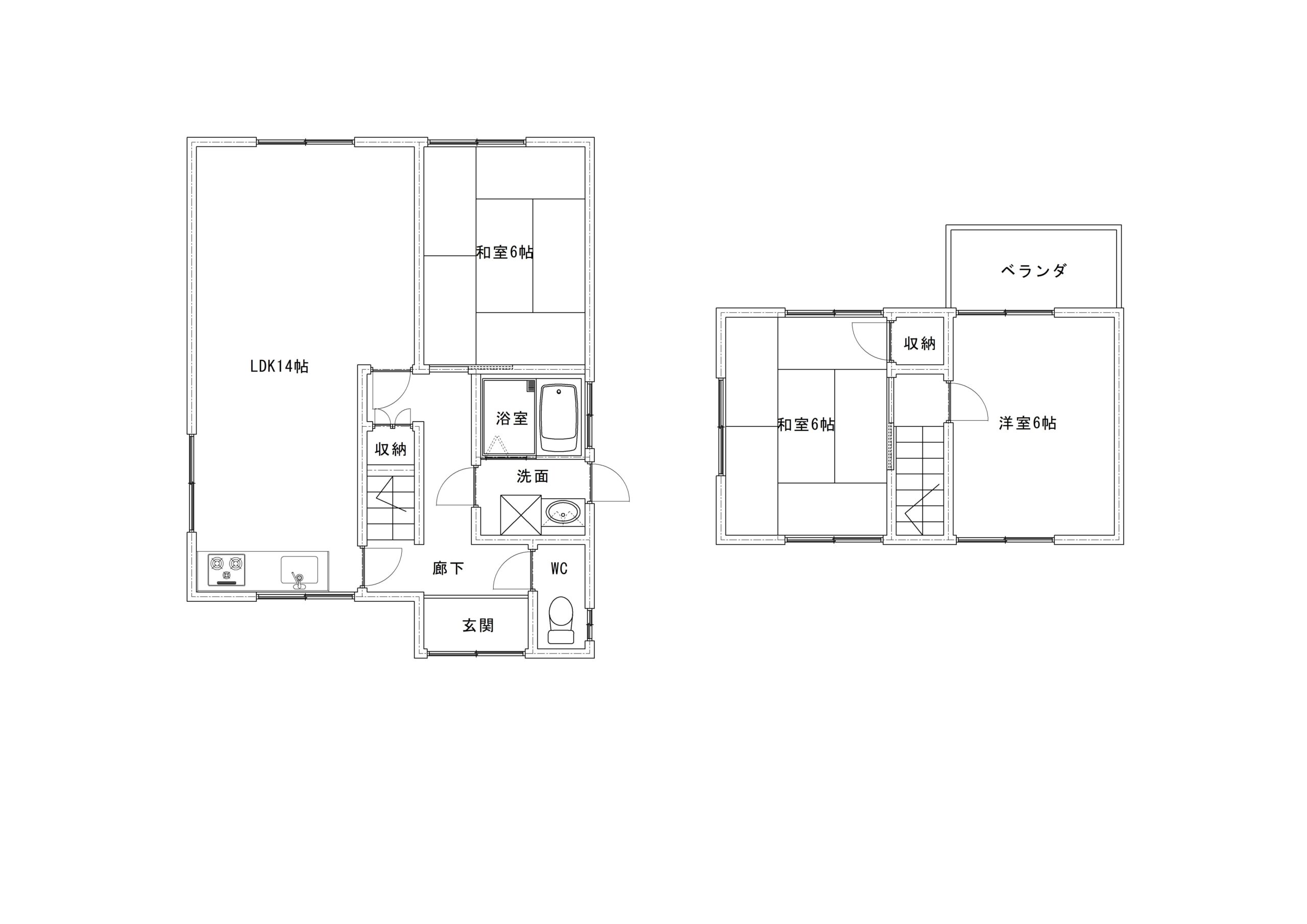
和室とダイニングの間仕切りを撤去して使いやすい14帖のLDKにリノベーションしました。
クロスも張替え済みで気持ちよく暮らすことができます。
畳を交換しておりカビや日焼けに強い和紙の畳を使用しております。
駐車場も拡張して駐車2台可能です。
徒歩圏内にスーパーがあります。
小学校区は光小学校区になります。
少し道路が狭いですが、工事車両も搬入できております。
気になる主要構造部等につきましては2年間の保証付きです。
お引渡し後に雨漏りや主要構造部の欠損等が発覚した場合保証を受けられます。
床下については白蟻調査済みで被害は発見されておりません。
住み替えによる不動産買取等も可能です。
不動産売却のご相談はこちらから
この物件にご興味のある方は、まずお気軽にお問い合わせください。
写真や資料でのご案内も可能です。
実物をご覧いただくと、ネットや資料では伝わりにくい雰囲気もご確認いただけます。
ご希望の方には、ローンや資金計画についても詳しくご説明いたします。
【お問い合わせ方法】
– メールでもお問い合わせ可能です。
– お電話は午前9時〜午後6時まで受け付けています。
(水曜日は定休日となっております。)
設備
上水道・下水道・都市ガス・電気
周辺情報
|小学校
福山市立光小学校(約830m)
|中学校
福山市立鷹取中学校(約440m)
物件詳細
物件種別|中古住宅
所在地|福山市草戸町三丁目9-2
土地面積|109.23㎡(33.04坪)
建物面積|72.03㎡(21.78坪)
私道面積|無し
構造|木造瓦葺2階建
間取り|3LDK
土地権利|所有権
地目|宅地
都市計画|市街化区域
用途地域|準工業地域
建ぺい率|60%
容積率|200%
地勢|平坦
接道幅員|北東側公道 幅員約3m
築年月|昭和53年11月
駐車場|2台可能
取引態様|専任
宅建免許番号|国土交通大臣(2)第9014号
他のおすすめ中古物件

















