ABOUT
一部リフォーム済みですぐに住めます。
徒歩1分圏内の場所に駐車1台、徒歩約4分の場所に駐車1台分確保済みです。
令和5年12月頃に大規模修繕の履歴があります。
徒歩1分圏内の場所に駐車1台、徒歩約4分の場所に駐車1台分確保済みです。
令和5年12月頃に大規模修繕の履歴があります。
一部リフォーム済みです。
主なリフォーム内容は
・全面クロスの張替え、クッションフロア張り替え
・トイレ新調・水栓金具等交換
・洗面化粧台新調・浴室内一部補修
・畳表替え・襖張替え・全面ハウスクリーニング等行っています。
気持ちよく住んでいただくことが可能です。
徒歩1分圏内の場所に駐車1台、徒歩約4分の場所に駐車1台分確保済みです。
最寄りのスーパーまで徒歩約2分です。
コンビニまで徒歩約3分の立地です。
福山駅より約1.6kmの立地です。
令和5年12月頃に大規模修繕の履歴があります。
住み替えによる不動産買取等も可能です。
不動産売却のご相談はこちらから
この物件にご興味のある方は、まずお気軽にお問い合わせください。
写真や資料でのご案内も可能です。
実物をご覧いただくと、ネットや資料では伝わりにくい雰囲気もご確認いただけます。
ご希望の方には、ローンや資金計画についても詳しくご説明いたします。
【お問い合わせ方法】
– メールでもお問い合わせ可能です。
– お電話は午前9時〜午後6時まで受け付けています。
(水曜日は定休日となっております。)
設備
上水道・下水道・都市ガス・電気
周辺情報
|小学校
福山市立樹徳小学校(約729m)
|中学校
福山市立城北中学校(約708m)
物件詳細
物件種別|売りマンション
所在地|福山市木之庄町二丁目13-51-209号室
建物面積|58.33㎡(17.64坪)
私道面積|無し
構造|鉄筋コンクリート造
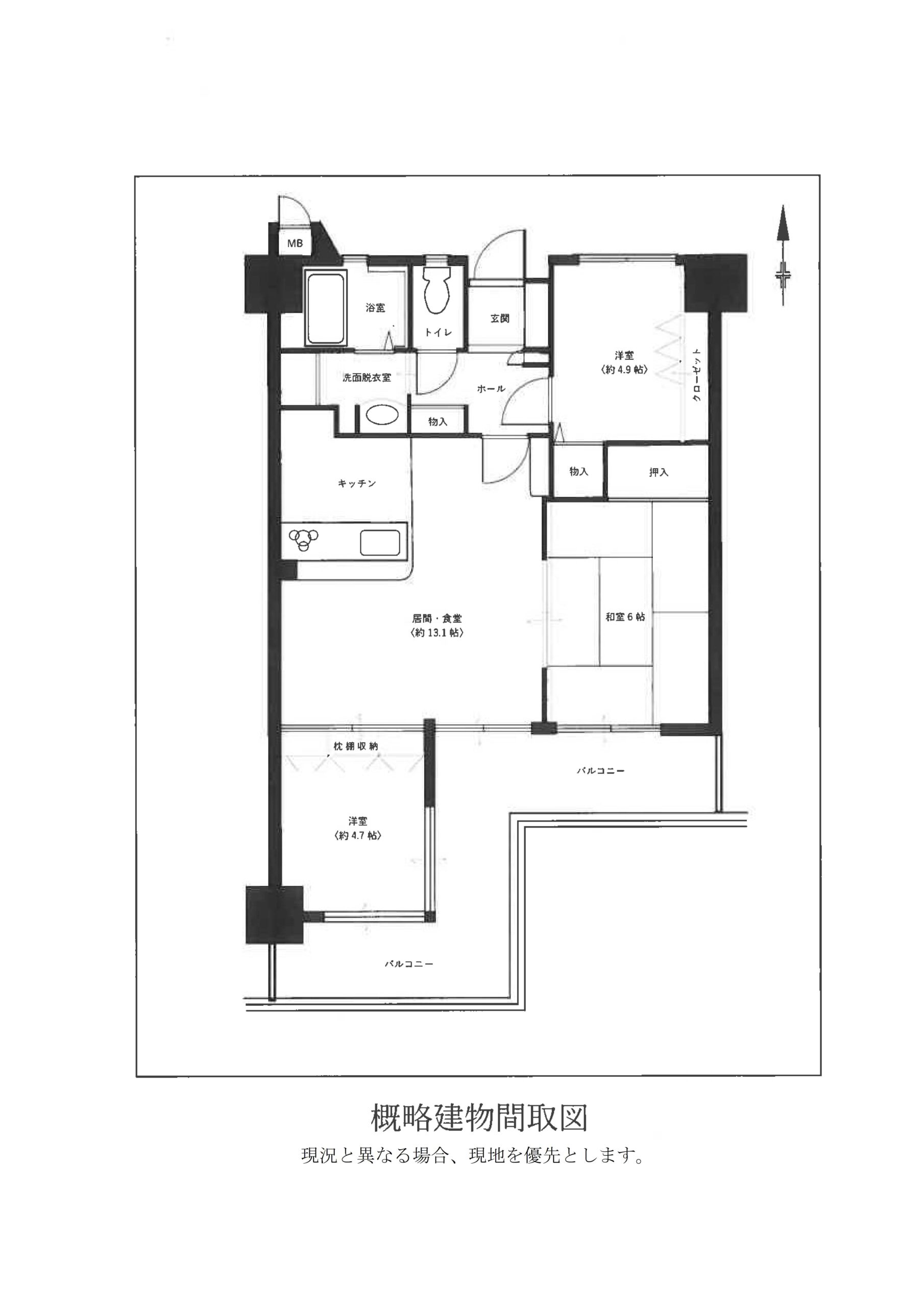
間取り|3LDK
土地権利|所有権
地目|宅地
都市計画|市街化区域
用途地域|一種住居地域
建ぺい率|60%
容積率|200%
地勢|平坦
築年月|平成1年7月
管理費|8,225円(月額)
修繕積立金|11,300円(月額)
駐車場|2台可能(近隣 1台当たり7,000円)
取引態様|専任
宅建免許番号|国土交通大臣(2)第9014号
他のおすすめ中古物件


















